特爾諾是一家武漢實驗臺廠家,提供實驗室臺柜規劃、武漢實驗臺安裝等服務



通風系統工程
作者:武漢實驗臺廠家 來源:http://m.mapqs.cn/ 發布時間:2022-06-29 16:15
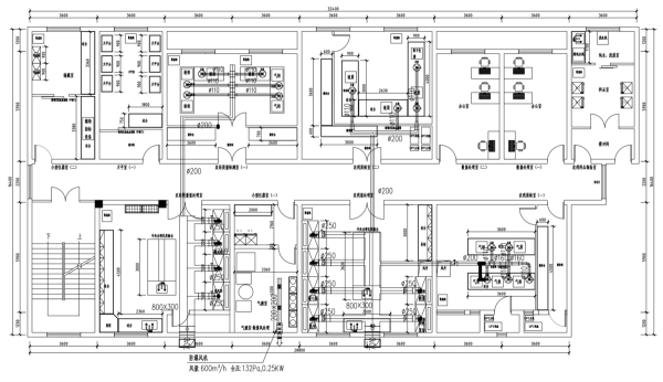
1.1實驗室通風就是把室內的污濁空氣直接或經凈化后排至室外,把新鮮空氣補充進來,從而保持室內的空氣條件,以保持衛生標準和滿足生產工藝的要求。前者稱為排風,后者稱之為送風。
1.2實驗室通風是研究控制實驗室有害物質對室內外空氣環境空氣的影響和破壞的技術。
1、實驗室通風系統一般由通風設備、通風管道、消聲器、風機、控制系統組成。

新聞中心
News center聯系我們
Contact us
聯系人:袁經理
手   機:18672949069
聯系人:張經理
手   機:18086438018
電   話:027—87988618
熱   線:400-027-0278
地   址:武漢市東湖新技術開發區光谷三路777號創星匯自貿金融大廈9層
掃一掃聯系特爾諾